您好,欢迎进入苏州亚博YABO起重科技有限公司!
咨询热线:18662173777
苏州亚博YABO起重科技有限公司

Suzhou Outuo Lifting Technology Co., Ltd

微信咨询
苏州亚博YABO起重科技有限公司
苏州亚博YABO起重科技有限公司
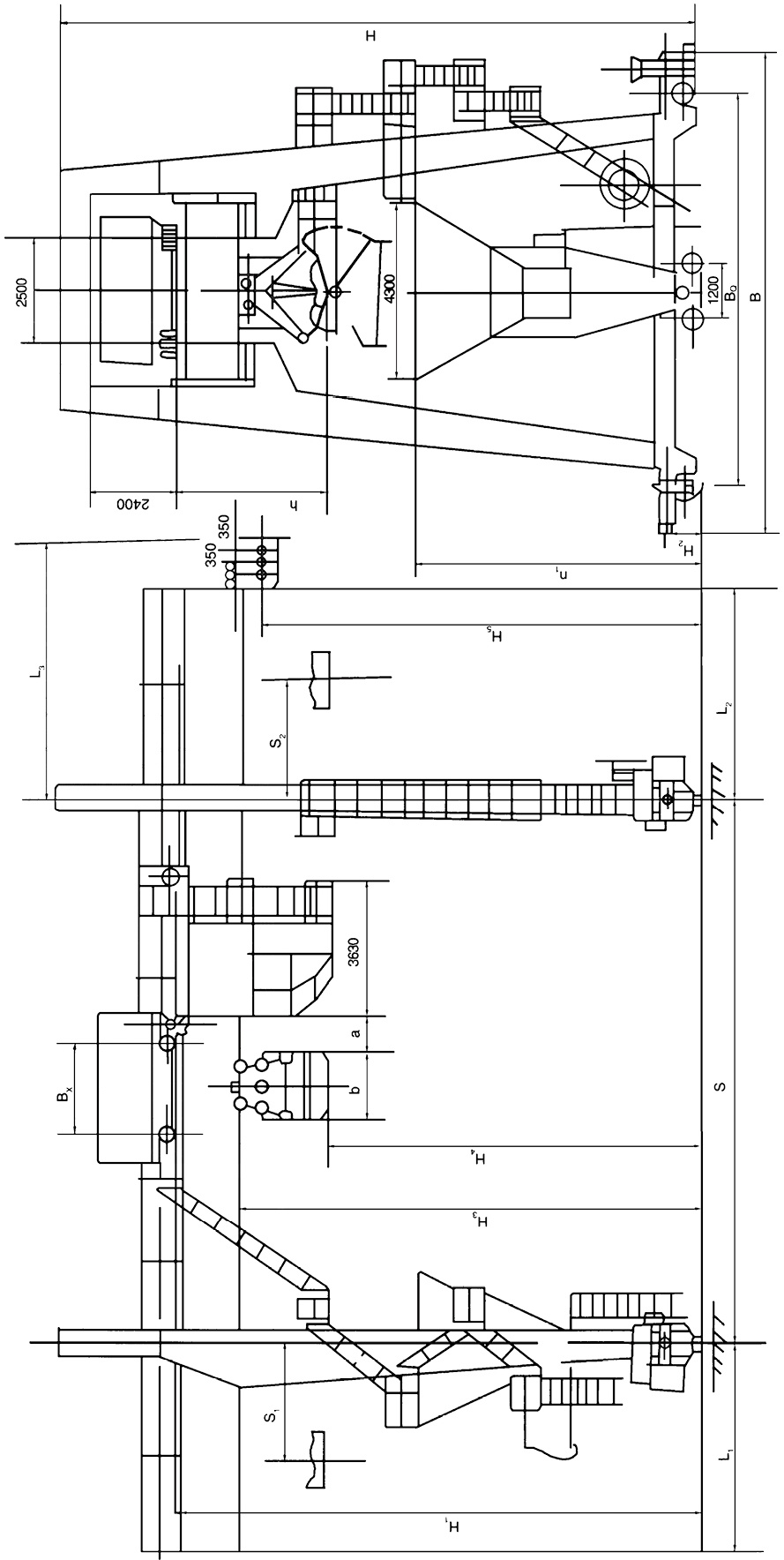
MZ型双梁抓斗门式起重机

欢迎来厂参观,免费携带物料试机,专车接送!

产品类别:双梁起重机

产品说明:  MZ型5~10吨双梁抓斗门式起重机  MZType5~10tDoubleBeamGrabDoorTypeCrane

联系我们   全国服务热线:18662173777
产品介绍

PRODUCT INTRODUCTION

9

  MZ型5~10吨双梁抓斗门式起重机

  MZType5~10tDoubleBeamGrabDoorTypeCrane


产品优势

PRODUCT ADVANTAGES

  • 专业研发

    专业的研发技术人员

  • 种类齐全

    研究产品种类多种多样

  • 性能稳定

    产品可长时间稳定工作

  • 完善售后

    拥有完善的售后服务体系

在线留言

MESSAGE